Tepebaşı İstanbul Araştırmaları Enstitüsü
AnasayfaEserlerProjeler ve Yapılar

Tepebaşı İstanbul Araştırmaları Enstitüsü

KAYDIRIN
  • KATEGORİ

    • Kültürel
    • Eğitim
    • Tarihsel

  • LOKASYON

    İstanbul

  • YIL

    2004


TEPEBAŞI SUNA ve İNAN KIRAÇ VAKFI İSTANBUL ARAŞTIRMALARI ENSTİTÜSÜ

Beyoğlu ve çevresi genellikle batılıların tercih ettiği bir yaşam çevresi olup, Suriçi’ne nazaran daha kozmopolit bir nüfus özelliği gösterir. Yabancı devletlerin Osmanlı İmparatorluğu nezdinde sürekli elçi bulundurma kararından sonra açılan İran elçiliği dışındaki tüm elçilikler Galata ve Beyoğlu bölgesindedir. İstanbul’u etkileyen hemen hemen tüm batılı akımların ilk örneklerine Galata ve Beyoğlu bölgesinde rastlanır; ilk belediye faaliyetleri, ilk elektrik, ilk hava gazı, ilk tramvay, ilk ve tek tünel burada hayata geçer. Galata, imparatorluğun batıya açılan kapısı olur.

XVII. yüzyıldan itibaren Galata, surların dışına taşarak gelişmeye başlar. Cadde-i Kebir (Grande Rue de Pera) adıyla anılan günümüz İstiklal Caddesi, Galata surlarının tepe kapısından başlayarak, Taksim’e doğru ilerlemektedir. Bu caddenin batısında, Haliç’e bakan yamaçta gelişen cadde ise eski adıyla Kabristan-Mezarlık Sokağı olan Meşrutiyet Caddesi’dir.

XIX. yüzyılın ilk çeyreğinden itibaren o döneme kadar tek konaklama yapısı olan hanlar, yerini otellere bırakmaya başlar. Otellerin yanı sıra çok katlı ve çok haneli apartmanlar da inşa edilir. 1810 ve 1811 yıllarında çıkan yangınlarla Beyoğlu bölgesi tamamen tahrip olur. Ancak, XIX. yüzyılın ortalarına doğru şehre ulaşımı sağlayan iki köprünün yapımıyla bu bölgenin şehirle bağlantısı artar. Özellikle 1870 yangını sonrası Beyoğlu bölgesine ahşap yapı yasağının getirilmesi kâgir inşaat yapımına hız verir.

Bu hızlı yapı faaliyeti sırasında ahşap yapı konusunda uzmanlaşmış yerel mimar ve ustaların genellikle yetersiz kaldığı, pek çok yabancı, özellikle de İtalyan mimar ve ustaların, bu konudaki boşluğu doldurmaya çalıştıkları görülmektedir. 1841, İtalya doğumlu, Guglielmo Semprini, bu mimarlardan birisidir. 1870 sonrası İstanbul’a gelen Semprini yaptığı yapılarla kısa süre içinde yabancı elçilik mensuplarının ve Türklerin beğenisini kazanarak, İtalyan cemaatinin en tanınmış kişilerinden biri olur. Tarlabaşı, Sururi Sokak, 38 numarada bulunan müteahhitlik firması tarafından 1870-1912 yılları arasında Beyoğlu bölgesinde pek çok yapı inşa edilmiştir. Dönemin tanığı A. Mori’nin ifadesine göre, Semprini Beyoğlu’nun hemen her sokağında bir yapı yapmıştır; ancak günümüze ulaşan herhangi bir çizimine rastlanmamıştır.

Mimar Guglielmo Semprini’nin kiraya verilerek gelir sağlamak amacıyla yaptığı binanın ana girişinin sağ yanında “G. SEMPRINI, ARCH.” yazısı okunmaktadır. Dönemin genel mimari karakterine uygun olarak tasarlanan yapı, E. Goad tarafından yapılan 1905 tarihli haritalarda mevcuttur. Ekim 1950 tarihli Suat Nirven paftalarında ise “Rosolimo Apartmanı” adıyla kayıtlıdır.

2005 yılında Pera Müzesi’nin açılışının ardından Suna ve İnan Kıraç Vakfı, Akdeniz Medeniyetleri Araştırma Enstitüsü (AKMED) adıyla 1996 yılında Antalya’da kurduğu araştırma merkezinin bir benzerinin İstanbul için gerekli olduğu düşüncesiyle çalışmalara başlamış ve söz konusu enstitü için Rosolimo Apartmanı’nı uygun bulmuştur.

Yapının Meşrutiyet Caddesi’ne bakan ön cephesi gerek mimari düzenleme, gerekse süsleme öğeleri açısından dikkat çekicidir. Buna karşın Kallavi Çıkmazı’ndan yüz alan arka cephesi Beyoğlu yapılarının pek çoğunun arka cephesi gibi herhangi bir mimari karakter taşımamaktadır. Yapı ticari amaçla kullanıldığı dönemde özellikle zemin katında önemli tadilatlara uğramış ve bazı pencereleri birleştirilerek vitrin olarak yeniden düzenlenmiştir.

Yapıldığı dönemin şartları gereğince kâgir olan yapının, döşeme açıklıkları volta denilen “I” profiller arasına sıkıştırılmış tuğla ile geçilmiştir. Uzun dönem, bakımsız kalması sebebiyle özellikle dış cepheye bakan duvarlara oturan veya ıslak hacimlerin zeminlerini oluşturan “I” profillerde pas nedeniyle büyük tahribatlar meydana gelmişti.

Yapının enstitü olarak kullanımının getirdiği en büyük zorluk, oluşacak olan kitaplıkların ağırlığını mevcut yapıya taşıtmaktı. Ayrıca yapının ısıtma, soğutma, iklimlendirme, ıslak hacimler, yangın merdiveni, asansör gibi sorunları vardı. Bu sebeple yapının ön ve arka bölümlerinin birer aks olarak aynı planlama anlayışı ile devamına, orta bölümünün ise yeni hacimleri yerleştirmek için bodrum kattan itibaren betonarme olarak yapılmasına karar verildi.

Restorasyon sırasında paslanan tüm döşeme profilleri yenilendi. Sıvalarının sökülmesi sonrası yapının ön cephesinin taş olarak inşa edildiği görüldü ve bu taşlar kısmen temizlenerek, kısmen değiştirilerek cephenin orijinal haline gelmesi sağlandı.

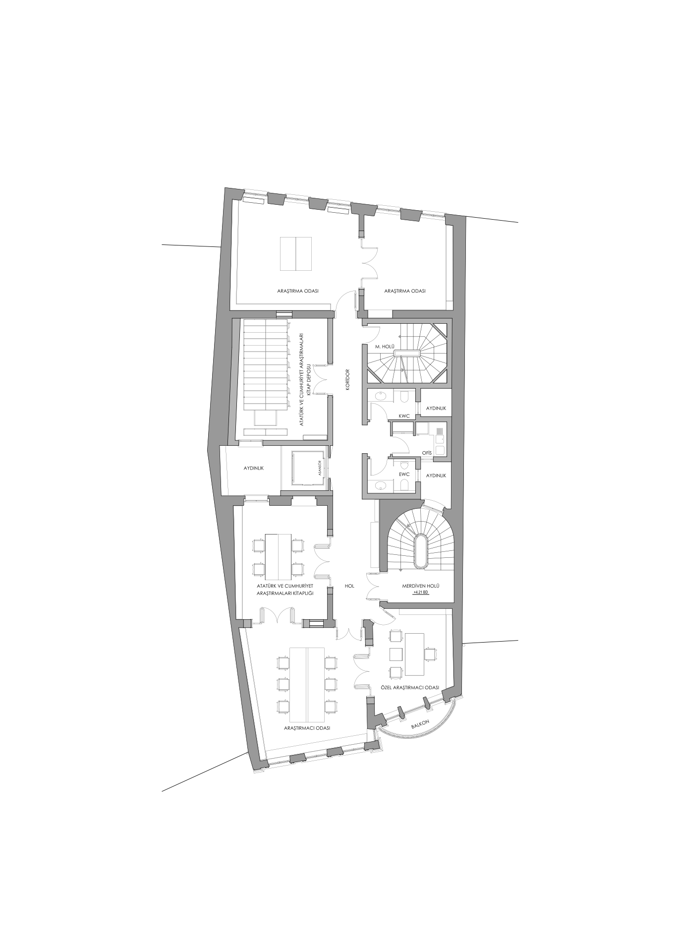
XIX. yüzyılın Rosolimo Apartmanı bugün İstanbul Araştırmaları Enstitüsü olarak “Atatürk ve Cumhuriyet Araştırmaları Bölümü”, “Bizans Araştırmaları Bölümü ve Semavi Eyice Kitaplığı”, Osmanlı Araştırmaları Bölümü ve Şevket Rado Yazma Eserler Kitaplığı” bölümleri ile araştırmacılara hizmet vermekte olup yakın bir gelecekte kitap sayısı 100.000'i aşacak olan bir “Kitaplık” ile “Bilgi ve Belge Merkezi” bulunmaktadır. Ayrıca zemin katında küçük bir “Sergi Salonu”, ikinci katında ise çeşitli söyleşilerin yapıldığı “Arka Oda” adı ile anılan küçük bir toplantı salonu bulunmaktadır...

KÜNYE
Orijinal Mimari Guglielmo Semprini
Mimari Tasarım M. Sinan Genim
Proje Yöneticisi Belma Barış Kurtel
Proje Ekibi Özgen Esen
Yusuf Aldırmaz
Bengü Selçuk
Deniz Kösemen
Zafer Nuriyev
Statik Fonksiyon Mühendislik
Attila Çaydamlı
Feridun Gültekin
Mekanik Hasel Mühendislik
Selim Evyapan
Elektrik Dasel Mühendislik
Korkut Daşdemir
Aydınlatma Tepta Aydınlatma
Raif Kural
Ana Yüklenici Gürsoy İnşaat
Ergun Gürsoy
Fotoğraflar Cemal Emden
Ömer Kokal
İşveren Suna ve İnan Kıraç Vakfı
Kar İnşaat
İşlev Araştırma Enstitüsü
Proje Yılı 2004
Yapım Yılı 2005-2006
Arsa Alanı 305 m2
İnşaat Alanı 2.050 m2
Zemin Kat Planı
Birinci Kat Planı
Kesit
Görünüş

Yenilem Proje Danışmanlık Ticaret A.Ş. © 2026. Her Hakkı Saklıdır. Site: İkipixel

TAKİP EDİN